$1,890,000
7533 Maie AV
Los Angeles, CA, 90001
Property Description
Duplicate houses are under building, will be finished and dlievered in around Sep, 2026.
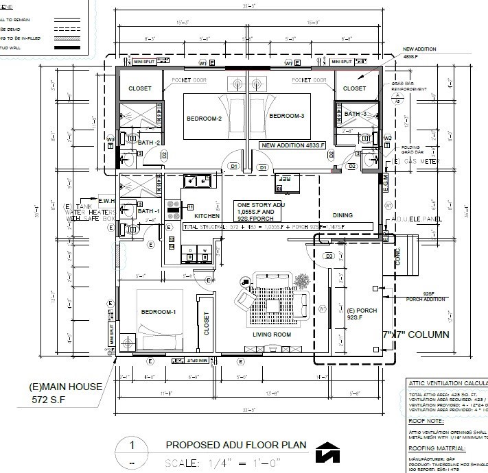
Backhouse: Addition to 1147sf, with 3 bedrooms 3 bathrooms, 483 sf new addition to existing house. Existing house would be remodeled.
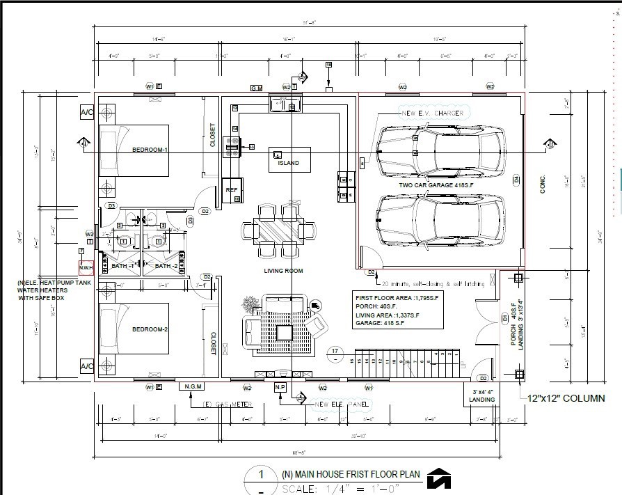
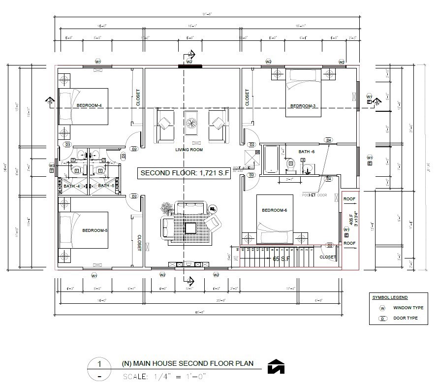
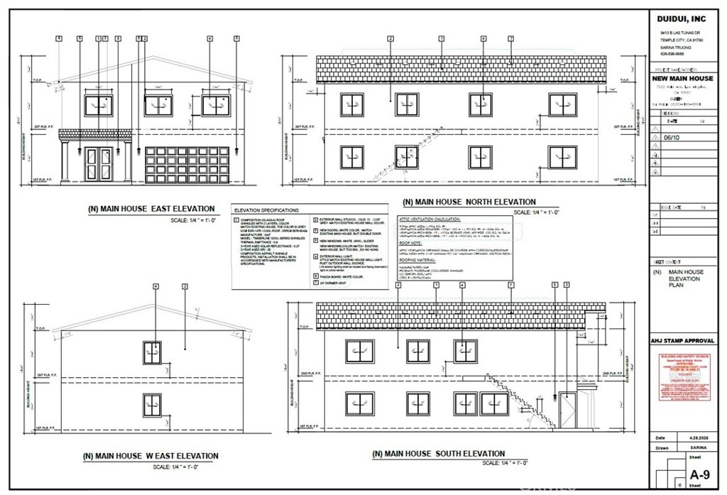
Front New House: 3058sf 2 floor, 418sf garage, 6 bedrooms and 5 bathrooms.
Now it’s under building
FRONT BUILDING PLAN FOR NEW MAIN HOUSE: 3058 SF 2-STORY SINGLE FAMILY RESIDENCE WITH NEW SFD WITH 6 BEDROOMS, 5 BATHS AND 2-CAR GARAGE 418SF.
BACK UNIT REMODEL AND CONVERTING TO ADU WITH ADDITION NEW AREA: CONVERSION OF 1055SF ACCESSORY DWELLING UNIT (ADU) WITH 3 BEDROOMS AND 3 BATHS.
Backhouse: Addition to 1147sf, with 3 bedrooms 3 bathrooms, 483 sf new addition to existing house. Existing house would be remodeled.
Front New House: 3058sf 2 floor, 418sf garage, 6 bedrooms and 5 bathrooms.
Now it’s under building
FRONT BUILDING PLAN FOR NEW MAIN HOUSE: 3058 SF 2-STORY SINGLE FAMILY RESIDENCE WITH NEW SFD WITH 6 BEDROOMS, 5 BATHS AND 2-CAR GARAGE 418SF.
BACK UNIT REMODEL AND CONVERTING TO ADU WITH ADDITION NEW AREA: CONVERSION OF 1055SF ACCESSORY DWELLING UNIT (ADU) WITH 3 BEDROOMS AND 3 BATHS.
Property Details
Price:
$1,890,000
MLS #:
MB24002346
Status:
Active
Beds:
9
Baths:
8
Type:
Single Family
Subtype:
Duplex
Neighborhood:
c37metropolitansouth
Listed Date:
Mar 8, 2026
Finished Sq Ft:
4,113
Lot Size:
5,826 sqft / 0.13 acres (approx)
Year Built:
1922
Schools
School District:
Los Angeles Unified
Interior
Bathrooms
8 Full Bathrooms
Cooling
NO
Laundry Features
OUT
Levels
A
Main Level Bathrooms
1
Main Level Bedrooms
1
Exterior
Common Walls
NCW
Community Features
URB
Garage Spaces
2
Parking Spots
2
Parking Total
2
View
NO
Financial
Need more info?
If you have any questions about this property, we at the Mohr Group would be happy to answer them. Click the button below and send us a message.
Ask a QuestionReady to go see it?
Schedule a ShowingMortgage Calculator
Similar Listings Nearby
Courtesy of EXCELLENCE RE REAL ESTATE. Disclaimer: All data relating to real estate for sale on this page comes from the Broker Reciprocity (BR) of the California Regional Multiple Listing Service. Detailed information about real estate listings held by brokerage firms other than Mohr Real Estate Group include the name of the listing broker. Neither the listing company nor Mohr Real Estate Group shall be responsible for any typographical errors, misinformation, misprints and shall be held totally harmless. The Broker providing this data believes it to be correct, but advises interested parties to confirm any item before relying on it in a purchase decision. Copyright 2026. California Regional Multiple Listing Service. All rights reserved. 7533 Maie AV
Los Angeles, CA















