$4,995,000
2302 Fairhill
Newport Beach, CA, 92660
Property Description
A rare opportunity to secure a custom-designed coastal estate just steps from Newport Beach’s Back Bay, positioned on a quiet cul-de-sac in one of the area’s most sought-after enclaves.
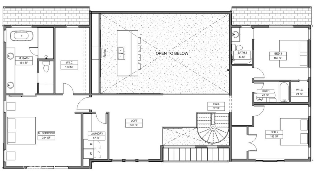
Currently in advanced stages of construction, this 5-bedroom, 5-bathroom residence will span approximately 3,983 square feet, designed by LL Design and built by Well Done Building & Design.
The home is anchored by a dramatic great room with ceilings exceeding 20 feet, creating exceptional volume, natural light, and a striking architectural presence. Expansive windows capture peek-a-boo views of the Back Bay and surrounding mountains, bringing the outdoors into the core of the home.
The layout is both functional and refined, featuring a designer kitchen with custom cabinetry, premium appliances, and curated finishes that seamlessly connect to the main living and dining spaces. Thoughtful architectural details, including built-ins and layered materials, add depth and continuity throughout.
Upstairs, the primary suite is designed as a private retreat with generous scale, natural light, and a spa-inspired bath. Secondary bedrooms are well-appointed, each offering comfort, privacy, and cohesive design.
Situated just moments from the Back Bay’s scenic trails, this home offers a rare combination of scale, design pedigree, and premier positioning — with the opportunity to step into a nearly completed custom build in one of Newport Beach’s most desirable locations.
Currently in advanced stages of construction, this 5-bedroom, 5-bathroom residence will span approximately 3,983 square feet, designed by LL Design and built by Well Done Building & Design.
The home is anchored by a dramatic great room with ceilings exceeding 20 feet, creating exceptional volume, natural light, and a striking architectural presence. Expansive windows capture peek-a-boo views of the Back Bay and surrounding mountains, bringing the outdoors into the core of the home.
The layout is both functional and refined, featuring a designer kitchen with custom cabinetry, premium appliances, and curated finishes that seamlessly connect to the main living and dining spaces. Thoughtful architectural details, including built-ins and layered materials, add depth and continuity throughout.
Upstairs, the primary suite is designed as a private retreat with generous scale, natural light, and a spa-inspired bath. Secondary bedrooms are well-appointed, each offering comfort, privacy, and cohesive design.
Situated just moments from the Back Bay’s scenic trails, this home offers a rare combination of scale, design pedigree, and premier positioning — with the opportunity to step into a nearly completed custom build in one of Newport Beach’s most desirable locations.
Property Details
Price:
$4,995,000
MLS #:
OC26059225
Status:
Active
Beds:
5
Baths:
5
Type:
Single Family
Subtype:
Single Family Residence
Subdivision:
Upper Newport Bay UBNB
Neighborhood:
n7westbaysantaanaheights
Listed Date:
Mar 18, 2026
Finished Sq Ft:
3,983
Lot Size:
7,272 sqft / 0.17 acres (approx)
Year Built:
2026
Schools
School District:
Newport Mesa Unified
Interior
Bathrooms
5 Full Bathrooms
Cooling
CA
Laundry Features
IR
Levels
U
Main Level Bathrooms
2
Main Level Bedrooms
2
Exterior
Attached Garage YN
1
Common Walls
NCW
Community Features
SDW, SL, SUB, CRB, PSV, HIKI, BIKI
Garage Spaces
2
New Construction YN
1
Parking Spots
2
Parking Total
2
View
BK, MT
Financial
Need more info?
If you have any questions about this property, we at the Mohr Group would be happy to answer them. Click the button below and send us a message.
Ask a QuestionReady to go see it?
Schedule a ShowingMortgage Calculator
Similar Listings Nearby
Courtesy of Cadence Real Estate, Inc.. Disclaimer: All data relating to real estate for sale on this page comes from the Broker Reciprocity (BR) of the California Regional Multiple Listing Service. Detailed information about real estate listings held by brokerage firms other than Mohr Real Estate Group include the name of the listing broker. Neither the listing company nor Mohr Real Estate Group shall be responsible for any typographical errors, misinformation, misprints and shall be held totally harmless. The Broker providing this data believes it to be correct, but advises interested parties to confirm any item before relying on it in a purchase decision. Copyright 2026. California Regional Multiple Listing Service. All rights reserved. 2302 Fairhill
Newport Beach, CA



