There are multiple listings for this address:
$3,300,000
11348 Reseda
Porter Ranch, CA, 91326
Property Description
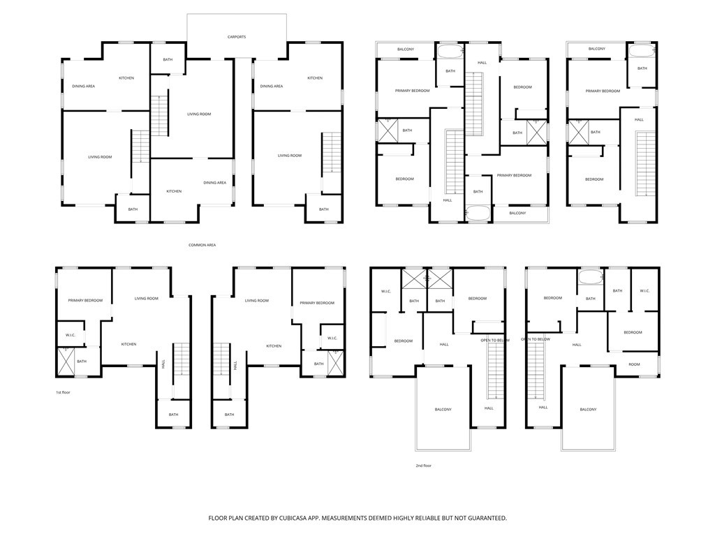
Brand-new 5-unit compound in Porter Ranch designed for multigenerational living, community-based housing, flexible residential use, and investment. Reimagined from a single-family lot, the property features two detached 3-bedroom, 3-bath homes and three 2-bedroom, 2-bath units across two additional structures, creating a low-density, campus-style setting that balances privacy with shared proximity.
The layout is well suited for extended families, group living environments, or organizations seeking a residential setting that supports both independence and connection. Detached residences offer a single-family feel, enhancing livability and broad appeal.
Currently under construction, this is an opportunity to acquire a newly developed asset with potential input on final finishes. Each unit is designed with open floor plans, contemporary kitchens, and efficient layouts aligned with modern living standards.
As brand-new construction, the property offers all new systems, reduced maintenance requirements, and long-term operational efficiency, making it attractive for both owner-users and investors.
The property will include five on-site parking spaces, including two covered, with additional street parking available. Conveniently located near shopping, dining, parks, freeway access, and major employment centers, this is a rare opportunity to acquire a versatile, newly constructed residential compound in one of the San Fernando Valley’s most desirable neighborhoods.
Images have been digitally edited and/or are renderings and may not reflect the current condition of the property.
The layout is well suited for extended families, group living environments, or organizations seeking a residential setting that supports both independence and connection. Detached residences offer a single-family feel, enhancing livability and broad appeal.
Currently under construction, this is an opportunity to acquire a newly developed asset with potential input on final finishes. Each unit is designed with open floor plans, contemporary kitchens, and efficient layouts aligned with modern living standards.
As brand-new construction, the property offers all new systems, reduced maintenance requirements, and long-term operational efficiency, making it attractive for both owner-users and investors.
The property will include five on-site parking spaces, including two covered, with additional street parking available. Conveniently located near shopping, dining, parks, freeway access, and major employment centers, this is a rare opportunity to acquire a versatile, newly constructed residential compound in one of the San Fernando Valley’s most desirable neighborhoods.
Images have been digitally edited and/or are renderings and may not reflect the current condition of the property.
Property Details
Price:
$3,300,000
MLS #:
SR26053975
Status:
Active
Beds:
0
Baths:
0
Type:
Single Family
Subtype:
Townhouse
Neighborhood:
poraporterranch
Listed Date:
Mar 12, 2026
Lot Size:
7,821 sqft / 0.18 acres (approx)
Year Built:
1965
Schools
School District:
Los Angeles Unified
Interior
Appliances
NO
Bathrooms
12 Full Bathrooms
Cooling
CA
Heating
CF
Laundry Features
IN
Levels
U
Main Level Bathrooms
5
Exterior
Accessibility Features
NO
Architectural Style
SEE
Common Walls
_1CW, EU
Community Features
SDW, SUB
Construction Materials
UNK
Other Structures
GHD
Parking Spots
5
Parking Total
5
Roof
OTH
Spa Features
NO
View
NE
Financial
Need more info?
If you have any questions about this property, we at the Mohr Group would be happy to answer them. Click the button below and send us a message.
Ask a QuestionReady to go see it?
Schedule a ShowingMortgage Calculator
Similar Listings Nearby
Courtesy of Berkshire Hathaway HomeServices California Properties. Disclaimer: All data relating to real estate for sale on this page comes from the Broker Reciprocity (BR) of the California Regional Multiple Listing Service. Detailed information about real estate listings held by brokerage firms other than Mohr Real Estate Group include the name of the listing broker. Neither the listing company nor Mohr Real Estate Group shall be responsible for any typographical errors, misinformation, misprints and shall be held totally harmless. The Broker providing this data believes it to be correct, but advises interested parties to confirm any item before relying on it in a purchase decision. Copyright 2026. California Regional Multiple Listing Service. All rights reserved. 11348 Reseda
Porter Ranch, CA
$3,300,000
11348 Reseda
Porter Ranch, CA, 91326
Property Description
Brand-new 5-unit compound in Porter Ranch designed for multigenerational living, community-based housing, flexible residential use, and investment. Reimagined from a single-family lot, the property features two detached 3-bedroom, 3-bath homes and three 2-bedroom, 2-bath units across two additional structures, creating a low-density, campus-style setting that balances privacy with shared proximity.
The layout is well suited for extended families, group living environments, or organizations seeking a residential setting that supports both independence and connection. Detached residences offer a single-family feel, enhancing livability and broad appeal.
Currently under construction, this is an opportunity to acquire a newly developed asset with potential input on final finishes. Each unit is designed with open floor plans, contemporary kitchens, and efficient layouts aligned with modern living standards.
As brand-new construction, the property offers all new systems, reduced maintenance requirements, and long-term operational efficiency, making it attractive for both owner-users and investors.
The property will include five on-site parking spaces, including two covered, with additional street parking available. Conveniently located near shopping, dining, parks, freeway access, and major employment centers, this is a rare opportunity to acquire a versatile, newly constructed residential compound in one of the San Fernando Valley’s most desirable neighborhoods.
Images have been digitally edited and/or are renderings and may not reflect the current condition of the property.
The layout is well suited for extended families, group living environments, or organizations seeking a residential setting that supports both independence and connection. Detached residences offer a single-family feel, enhancing livability and broad appeal.
Currently under construction, this is an opportunity to acquire a newly developed asset with potential input on final finishes. Each unit is designed with open floor plans, contemporary kitchens, and efficient layouts aligned with modern living standards.
As brand-new construction, the property offers all new systems, reduced maintenance requirements, and long-term operational efficiency, making it attractive for both owner-users and investors.
The property will include five on-site parking spaces, including two covered, with additional street parking available. Conveniently located near shopping, dining, parks, freeway access, and major employment centers, this is a rare opportunity to acquire a versatile, newly constructed residential compound in one of the San Fernando Valley’s most desirable neighborhoods.
Images have been digitally edited and/or are renderings and may not reflect the current condition of the property.
Property Details
Price:
$3,300,000
MLS #:
SR26061354
Status:
Active
Beds:
12
Baths:
12
Type:
Townhouse
Neighborhood:
poraporterranch
Listed Date:
Mar 20, 2026
Finished Sq Ft:
6,000
Lot Size:
7,821 sqft / 0.18 acres (approx)
Year Built:
1965
Schools
School District:
Los Angeles Unified
Interior
Appliances
NO
Bathrooms
12 Full Bathrooms
Cooling
CA
Heating
CF
Laundry Features
IN
Levels
U
Main Level Bathrooms
5
Exterior
Accessibility Features
NO
Architectural Style
SEE
Common Walls
_1CW, EU
Community Features
SDW, SUB
Construction Materials
UNK
Other Structures
GHD
Parking Spots
5
Parking Total
5
Roof
OTH
Spa Features
NO
View
NE
Financial
Need more info?
If you have any questions about this property, we at the Mohr Group would be happy to answer them. Click the button below and send us a message.
Ask a QuestionReady to go see it?
Schedule a Showing














